Angebot!!! Ehemaliger Dreiseitenhof mit 7 Wohneinheiten an der Ostseeküste
Dieses wunderschöne und einmalige Mehrfamilienhaus mit Nebengelass und Scheune befindet sich in der Gemeinde Steffenshagen.
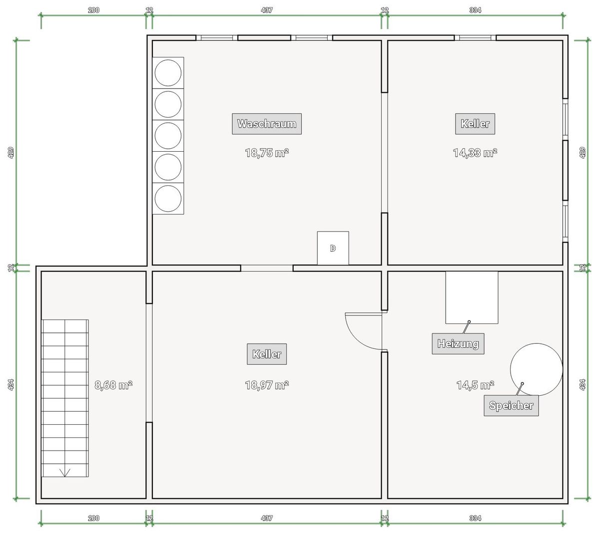
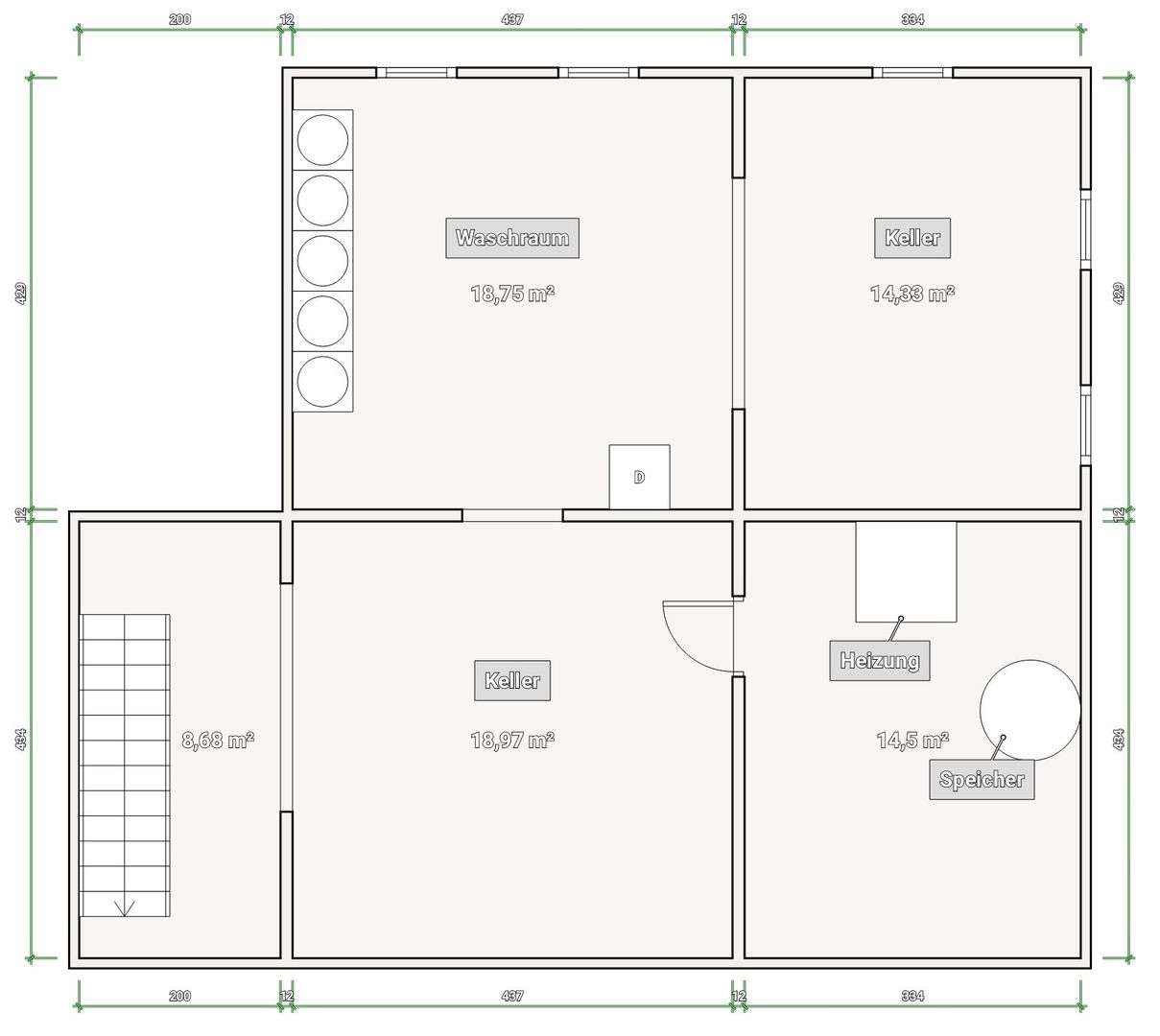
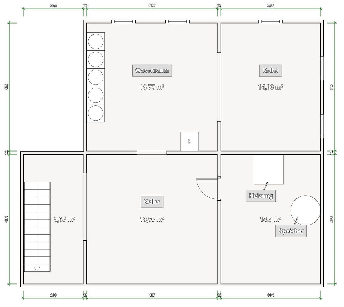
Das Objekt wurde 1920 erbaut und verfügt über 5 Wohnungen, wovon derzeit 3 Wohnungen festvermietet sind und zwei Wohnung als Ferienwohnung vermietet werden können. Im Nebengelass, welches 2017 und 2021 kernsaniert wurde befinden sich 2 weitere Wohneinheiten. Diese sind derzeit freistehend (Ferienvermietung). Die gesamte Grundstücksgröße beläuft sich auf ca. 4690qm (Hof Grundstück)
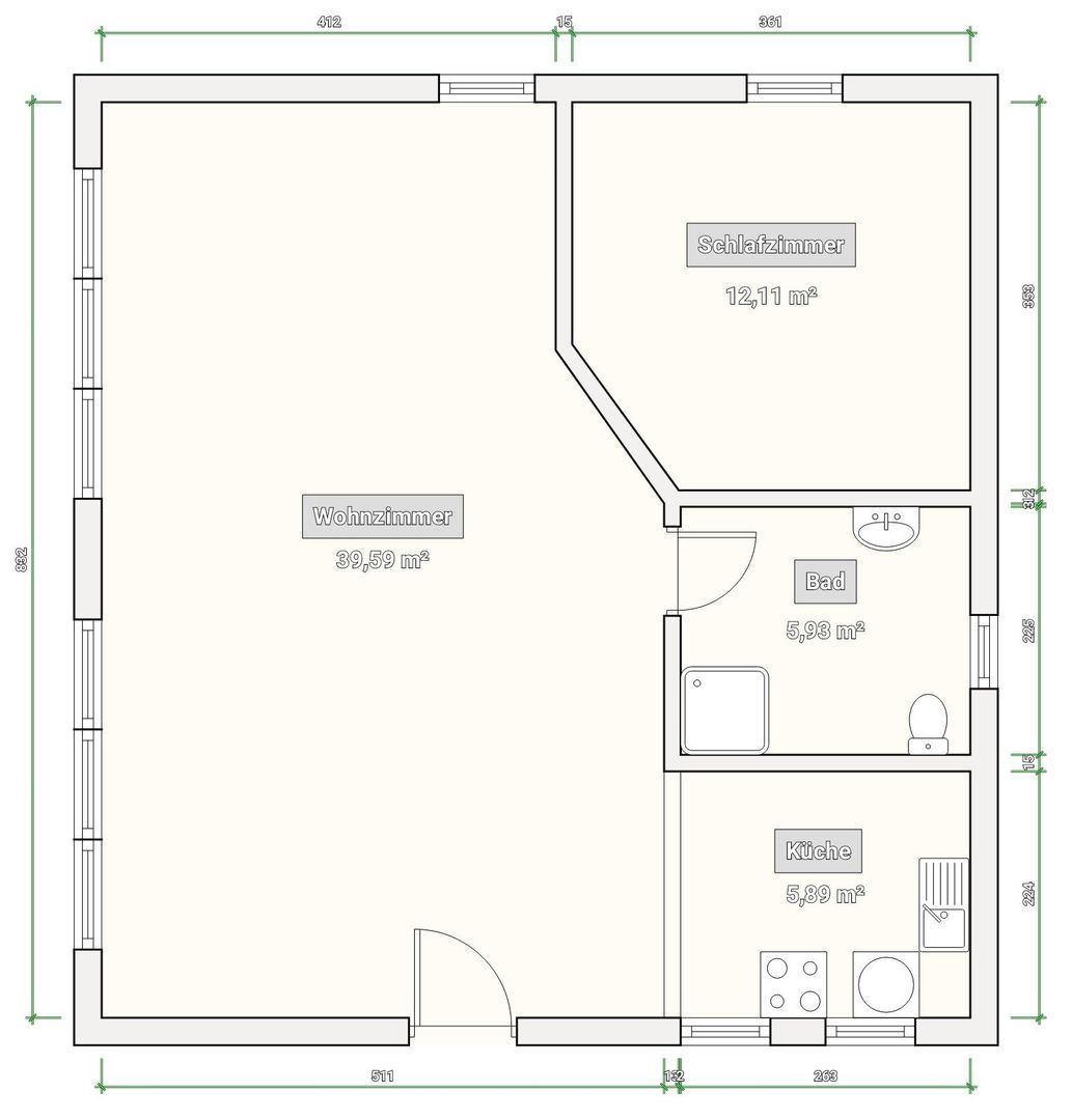
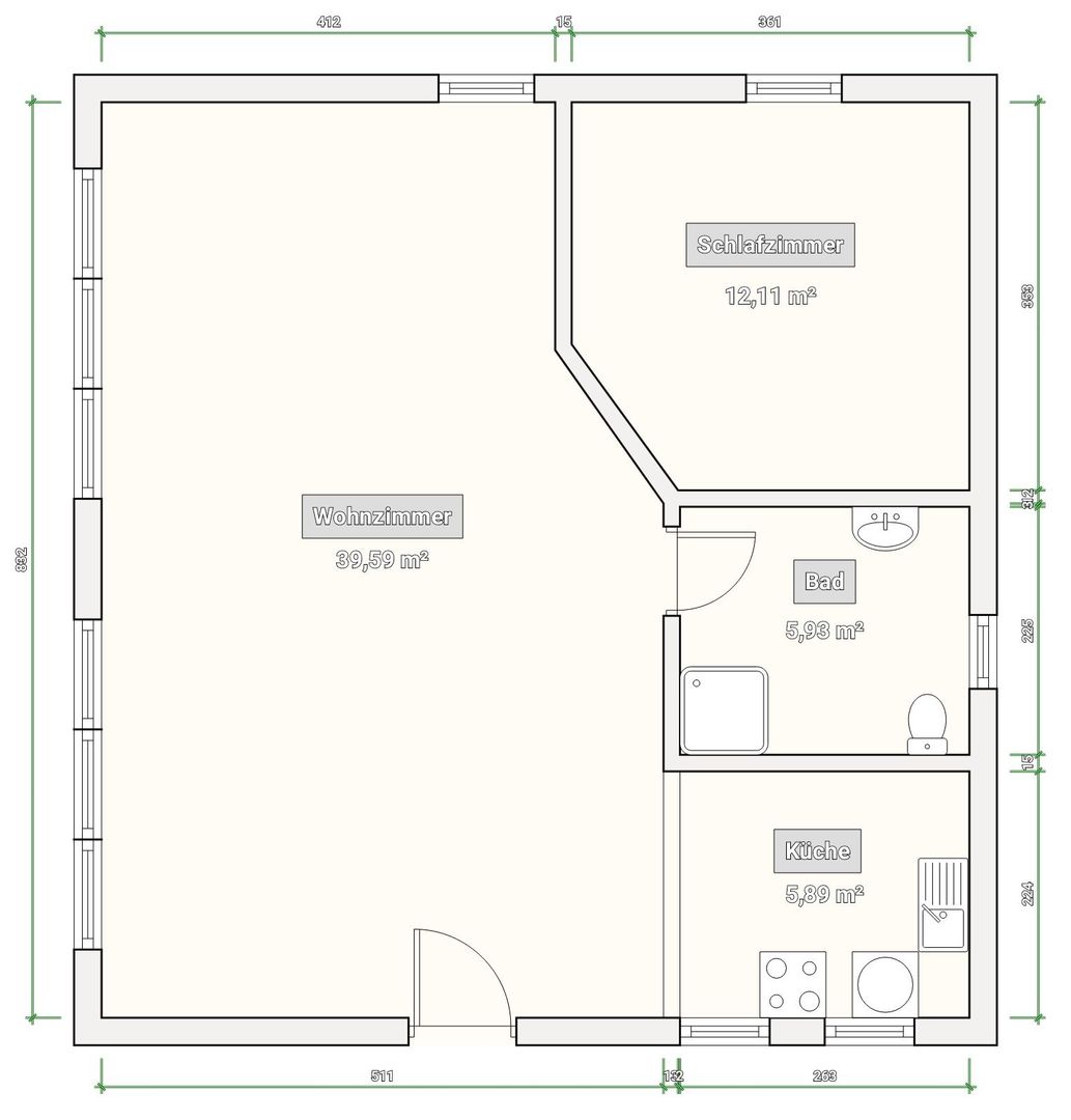
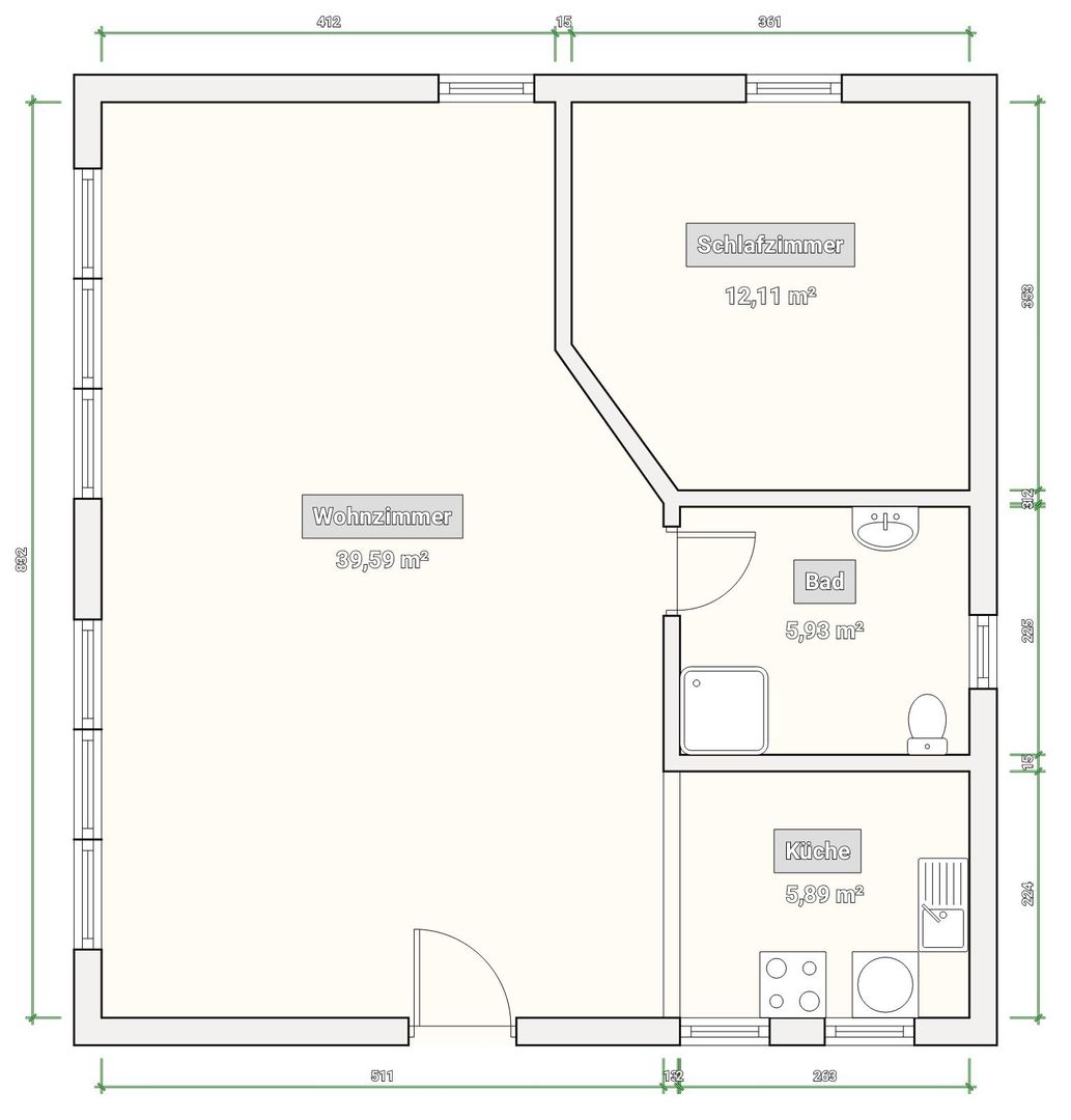
Im Erdgeschoss des Haupthauses befindet sich eine 3-Raum Wohnung mit ca. 68qm, sowie eine weitere 3-Raum Wohnung mit ca.76qm Wohnfläche. Über eine Treppe im Flur gelangen Sie ins Obergeschoss des Mehrfamilienhauses, hier befinden sich die 3 weiteren Mietwohnungen. Eine 2-Raum Wohnung mit ca. 43qm, eine 2-Raum Wohnung mit ca. 47qm und eine 3-Raum Wohnung mit ca. 67qm.
Das Nebengebäude teilt sich auf 2 Parteien auf. Die 3-Raum Wohnung im Erdgeschoss verfügt über ca. 60 qm und wurde 2021 saniert. Die Wohnung im Obergeschoss verfügt über ca. 87 qm und wurde 2017 saniert. Diese wird derzeit als Ferienwohnung vermietet. Die Wohnung verfügt neben einem Schlafzimmer, einem Wohnbereich mit angrenzender Küche und einem Badezimmer, über einen Schlafboden. Dieser wird über eine Leiter erreicht. Der Schlafboden hat eine Deckenhöhe von ca. 1,30-1,50m und teilt sich auf 2 Schlafzimmer auf.
(Das Nebengelass wird mit Strom beheizt) Das gesamte Nebengebäude verfügt über Vollholzdielenböden.
Des Weiteren befindet sich auf dem Grundstück noch eine große Scheune. Hier wurde für die Mietparteien eine Abstellmöglichkeit geschaffen, für Gartengeräte, Fahrräder uvm.
Das Grundstück befindet sich im Innenbereich und ist bebaubar nach §34(BauGB), somit wäre es möglich den ehemaligen Dreiseiten Hof (nach Bauantrag) wieder herzustellen. Auf dem Haupthaus befinden sich die Solaranlage und auf dem Nebengebäude die Photovoltaikanlage. Die Heizungsanlage wurde 2009 modernisiert. Das Haupthaus wurde in Massivbauweise mit 2 vollgeschossen errichtet und ist teilunterkellert. Der Gesamtzustand des Objektes befindet sich in einem guten Zustand. Das Objekt wurde 1995 umfassend saniert.
Modernisierungen:
+ 1995 umfassend Elektrik, Sanitär
+ 2009 Heizungsanlage
+ 2017/2021 Nebengebäude
Die Jahresmieteinnahmen (2022) betragen ca. 43.904,00 €, davon sind ca. 24.224,00€ Mieteinnahmen der Ferienwohnung.
Auf Wunsch der Mieter wird auf eine Veröffentlichung von Innenbildern überwiegend verzichtet. Eine Besichtigung am und im Objekt findet ausschließlich mit uns zusammen statt.
Alle Angaben ohne Gewähr. Alle Angaben berufen Sich auf die Aussage der Eigentümer. Wir haften weder für den Inhalt des Exposés noch für die Richtigkeit der Angaben.
Es werden nur Anfragen mit vollständigen Adressdaten, Telefonnummer und E-Mailadresse beantwortet.
+ Photovoltaikanlage 10kwp mit Batteriespeicher mit einer Speicherkapazität von 8 kW
+ Solaranlage
+ ehemaliger Dreiseiten Hof wieder erschaffen
+ Ferienwohnungen erlaubt
+ sehr großzügiges Grundstück
+ Ruhig
+ Traumhafte Lage
+ einmalig
Steffenshagen ist eine Gemeinde im Landkreis Rostock in Mecklenburg-Vorpommern. Sie liegt zwischen der ehemaligen Kreisstadt Bad Doberan mit seinem Ortsteil Heiligendamm und dem Ostseebad Kühlungsborn. Steffenshagen ist ein Dorf im Grünen, im Hinterland der Ostsee. Die nahe gelegenen Wiesen, Weiden und Wälder geben dem Ort das Gepräge. Sie erreichen die meisten Strandabschnitte zwischen Rerik im Westen und Warnemünde im Osten und Heiligendamm im Norden in wenigen Kilometern. Die zentrale Lage ermöglicht aber auch kurze Wege nach Rostock und Wismar sowie darüber hinaus durch die Autobahn und Zuganbindung auch nach Hamburg und Berlin.