Traum unter Reet direkt an der Ostsee
Dieses charmante Reetdachhaus liegt idyllisch an der malerischen Ostseeküste und vereint den rustikalen Charme mit traditioneller Bauweise.
Das Objekt, welches ca. 1850 erbaut wurde, bietet eine seltene Kombination aus Naturverbundenheit und Potenzial zur individuellen Gestaltung. Mit einem weitläufigen ca. 1280qm großem Naturbelassenem Grundstück und einem wunderschönen Reetdachhaus mit einer derzeitigen Wohnfläche von ca. 130 qm und einer Ausbaureserve von ca. 130 qm im Dachgeschoss, ist diese Immobilie ideal für Naturliebhaber und kreative Köpfe.
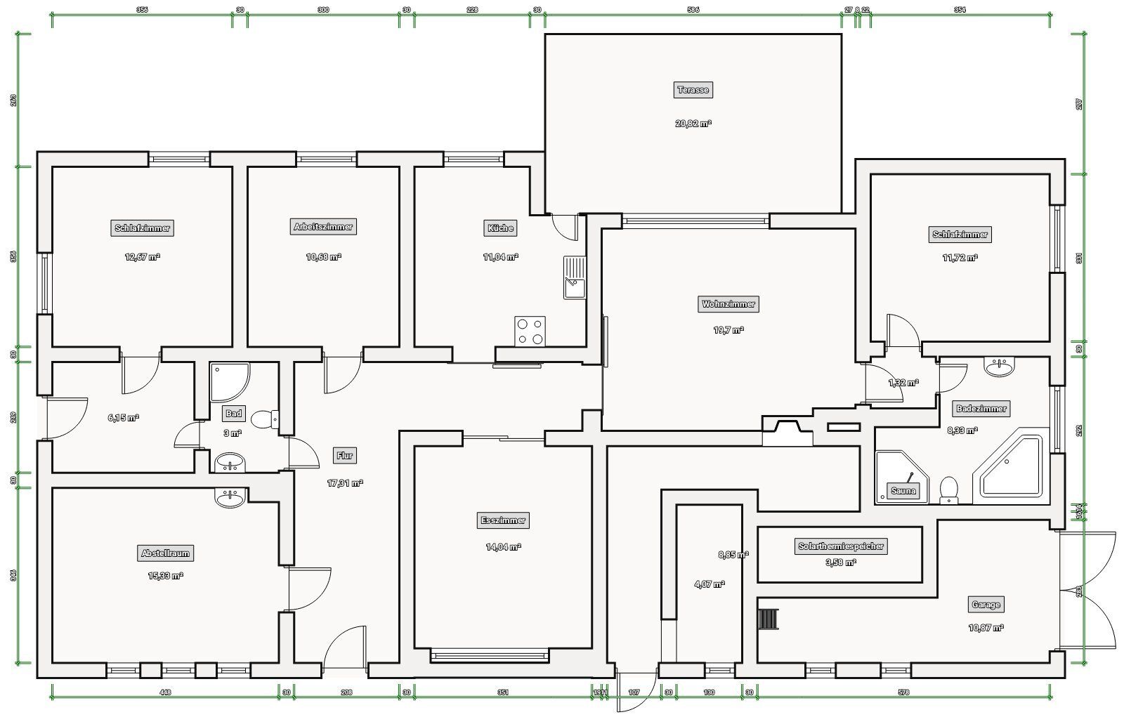
Im Erdgeschoss dieser einzigartigen Immobilie befindet sich ein geräumiges Wohnzimmerzimmer mit Blick auf die angrenzende Terrasse und den Naturgarten. Der Wassergeführte Kamin ist ein wahrer Hingucker in diesem charmanten Wohlfülraum. Des Weiteren verfügt das Objekt über eine Küche mit Einbauküche, einem Esszimmer, 3 Schlafzimmern, einem großen Abstellraum (auch umfunktionierbar zu einem weiteren Schlafzimmer) einem Duschbad, sowie einem weiteren Badezimmer mit Badewanne und Whirlfunktion und einer Sauna.
Ausstattung und Modernisierungen
* Traditionell gedecktes Reetdachhaus, regelmäßig gewartet
* verfügt größtenteils über 3-fach verglaste Kunststofffester (Nordseite 2-fach verglaste Holzfenster)2014
* Erdgasheizung 1993
* Teilweise Rollläden
* Solarthermie-Anlage auf dem Carport für die Heizungsunterstützung
* Immobilien liegt 20m über NN( Meeresspiegel), daher liegt das Grundstück in einem risikofreien Bereich
Diese Immobilie eignet sich sowohl als dauerhaftes Wohnhaus, als auch als Feriendomizil. Auch als Mehrgenerationswohnen ist es bestens geeignet. Die Kombination aus traditionellem Reetdach, großzügigem Naturgarten und der Möglichkeit zur individuellen Erweiterung, machen dieses Haus zu einem sehr besonderem Angebot an der Ostseeküste, nur etwa 2 km vom Sandstrand entfernt.
Erleben Sie die Ruhe und Naturnähe der Ostseeküste in Ihrem Reetdachhaus und schaffen Sie sich Ihr persönliches Paradies.
Alle Angaben ohne Gewähr. Alle Angaben berufen Sich auf die Aussage der Eigentümer. Wir haften weder für den Inhalt des Exposés noch für die Richtigkeit der Angaben.
Eine Besichtigung am Objekt und auf dem Grundstück findet ausschließlich mit uns zusammen statt.
Es werden nur Anfragen mit vollständigen Adressdaten, Telefonnummer und E-Mailadresse beantwortet.
+ Sauna
+ Naturbelassenes Grundstück
+ einmaliges Reetdach Objekt
+ Brunnen
+ Zisterne
+ Doppelcarport
+ Modernisierungsbedürftig
Elmenhorst liegt an der Steilküste zwischen Warnemünde und Kühlungsborn. Ein naturbelassener Sandstrand, der die meiste Zeit des Jahres einsam ist, bietet vor allem jenen Gästen Erholung, die Ruhe und Entspannung suchen. Zu Fuß oder mit dem Fahrrad lädt eine reizvolle Naturlandschaft dazu ein, sich vom Gegensatz zwischen Naturstrand und dem angrenzenden zauberhaften Küstengebiet mit seiner seltenen Flora und Fauna faszinieren zu lassen.
Der Ort bietet kleine Restaurants und Spielplätze, Einkaufsmöglichkeiten und ein Kindergarten. Die Schulen sind mit dem Fahrrad, dem Bus oder Auto schnell zu erreichen. Eine ausreichende Busanbindung in die nächsten Orte ist gegeben.
In nur wenigen Autominuten erreicht man das Ostseebad Warnemünde mit weiteren Geschäften, Schulen und Kindergärten sowie eine Bahnanbindung.