Einfamilienhaus mit Einliegerwohnungen und sehr viel Potenzial
Dieses Objekt besticht mit viel Wohnraum und einem gemütlichen Grundstück.
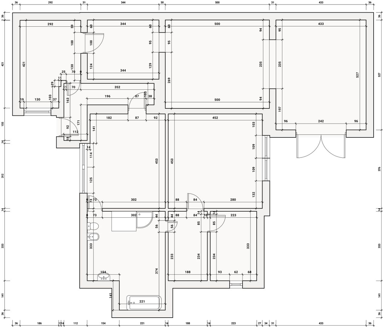
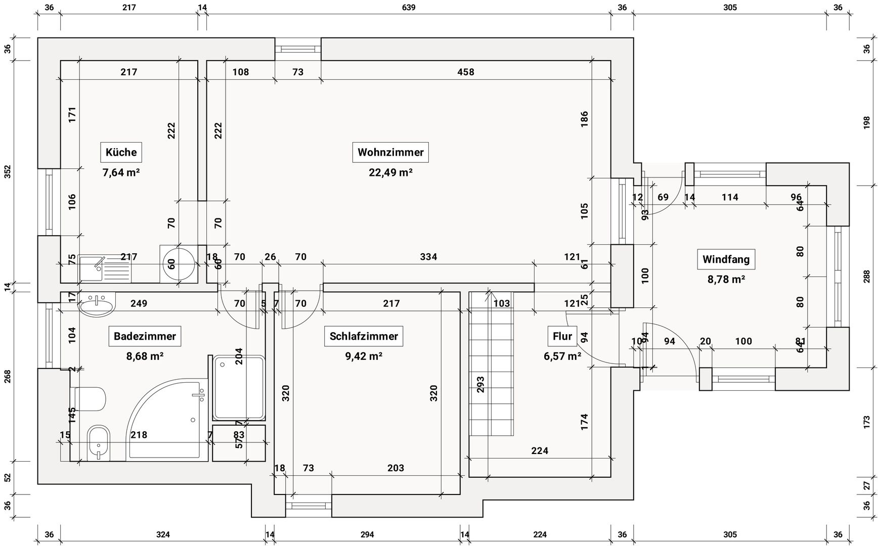
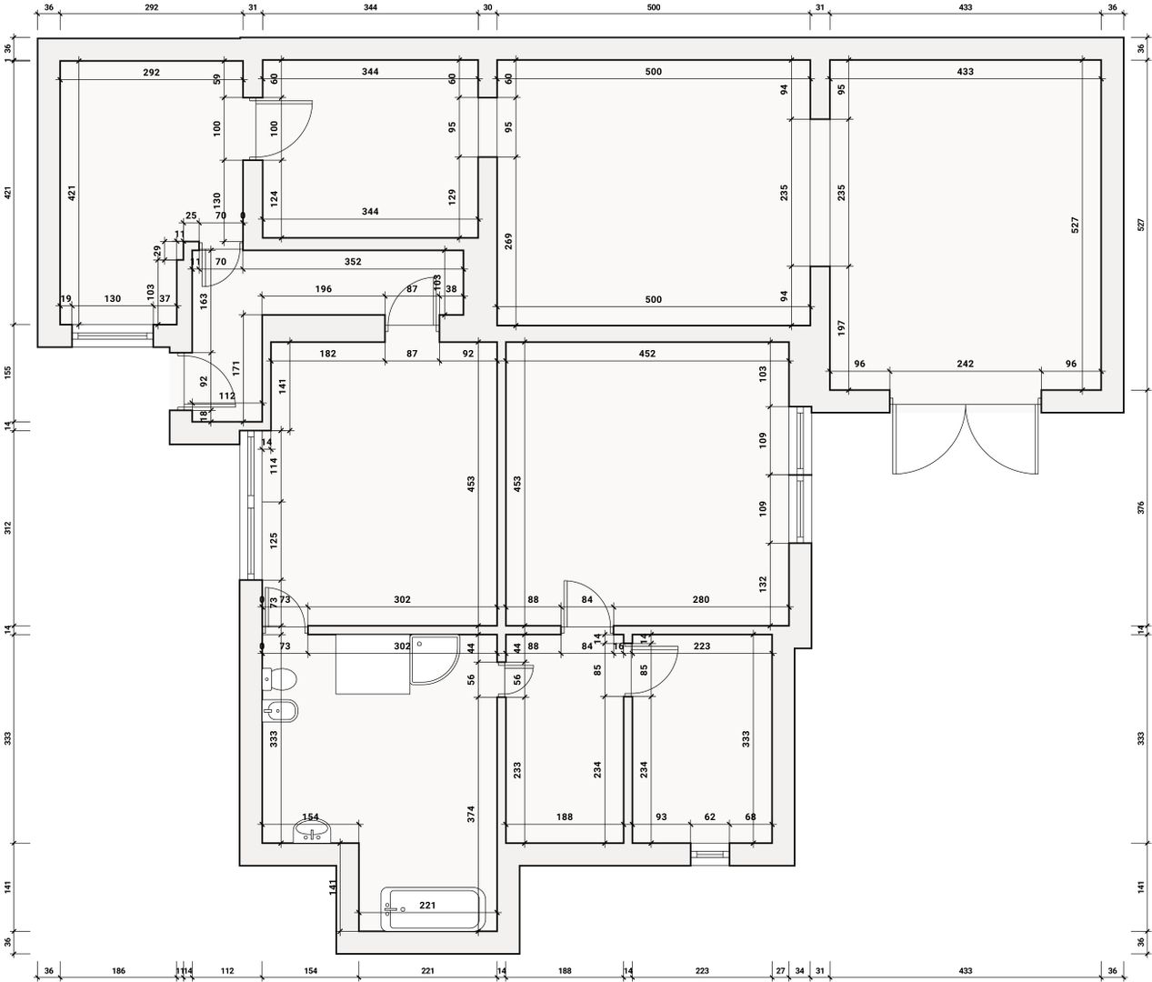
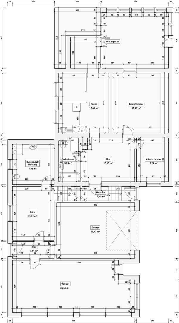
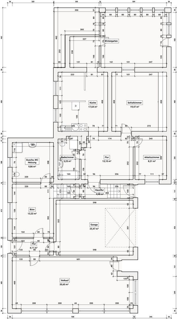
Das Einfamilienhaus wurde im Jahr 1986 erbaut als EW 65B Wohnhaus. Mit einer Wohnfläche von ca.186 m² bietet es sehr viel Platz für ein gemütliches Zuhause. Das dazu gehörige idyllische Grundstück erstreckt sich über ca. 1533 m².
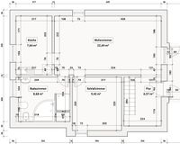
Das Objekt ist sehr vielseitig Nutzbar. Im vorderen Bereich des Hauses war früher eine Firma ansässig. Die Büroräume wurden umgestaltet und werden derzeit als Wohnraum für Gäste genutzt. Mit einem Schlafzimmer einem offenen Küchen-Wohnbereich und einem Ebenerdigen Badezimmer bietet es nun den platz für eine perfekte eigenständige Wohnung.
Das Objekt selbst verfügt über eine kleine Einligerwohnung mit Schlafraum, Küchenzeile und Badezimmer mit Dusche. Diese ist auch separat vom Garten erreichbar. Ebenfalls gelangt man auch auch vom Haupthaus zur Garage, die sich zwischen dem ehemaligen Bürotrakt und dem Haupthaus befindet.
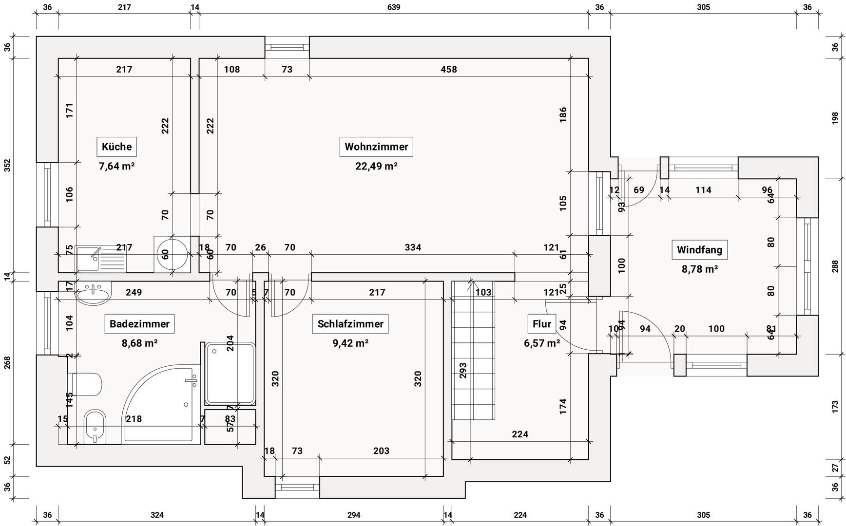
Im Haus befinden sich derzeit 2 Schlafzimmer, ein Badezimmer mit Badewanne und die Küche die Sie wiederum in den sehr großzügigen Wintergarten führt von dem aus Sie einen fantastischen Blick in den Garten haben.
Über eine separate Treppe am Haus gelangt man ins Obergeschoss.
Hier befindet sich eine derzeit festvermietet 3 Zimmer Wohnung. Diese verfügt über ein Badezimmer mit Dusche und Badewanne, eine Wohn-Küche und ein Schlafzimmer. Das Dachgeschoss ist komplett ausgebaut und bietet somit für den Mieter weiteren Wohnraum, der auch als Abstellmöglichkeit genutzt werden kann.
Das Objekt ist komplett unterkellert und bietet hier ebenfalls sehr viel Platz für Abstellmöglichkeiten, eine Werkstatt und sogar die Möglichkeit eine weitere Wohnung zu realisieren.
Modernisierungen:
+ 1990 Fenster, 2fach Kunststoff, Wintergarten 1fach verglast
+ 1990 Grundrissgestaltung
+ 2000 Modernisierung Bäder
+ 2003 Innenausbau
+ 2018 Heizung
Dieses Objekt bietet Ihnen unzählige Möglichkeiten.
Eine Besichtigung am Objekt und auf dem Grundstück findet ausschließlich mit uns zusammen statt.
Alle Angaben ohne Gewähr. Alle Angaben berufen Sich auf die Aussage der Eigentümer. Wir haften weder für den Inhalt des Exposés noch für die Richtigkeit der Angaben.
Es werden nur Anfragen mit vollständigen Adressdaten, Telefonnummer und E-Mailadresse beantwortet.
+ 3-4 Wohneinheiten
+ Wintergarten
+ großes Grundstück
+ Photovoltaik
+ Wohn- inkl. Geschäftsgebäude möglich
+ Stellplätze: Garage, Carport, Außenstellplätze
Die Gemeinde besteht aus den Ortsteilen Bartenshagen, Parkentin, Hütten, Neuhof und Bollbrücke.
Bartenshagen-Parkentin liegt zwischen der Stadt Bad Doberan und der Hansestadt Rostock. . Das Gemeindegebiet wird von landwirtschaftlichen Flächen, zumeist Ackerland, geprägt. Südlich von Parkentin in der Nähe des Ortsteils Neuhof und nördlich von Bollbrücke gibt es Wiesen und Weiden.
Umgeben wird Bartenshagen-Parkentin von den Nachbargemeinden Admannshagen-Bargeshagen im Norden, Lambrechtshagen im Osten, Stäbelow im Südosten, Satow im Süden, Hohenfelde im Südwesten sowie Bad Doberan im Westen.