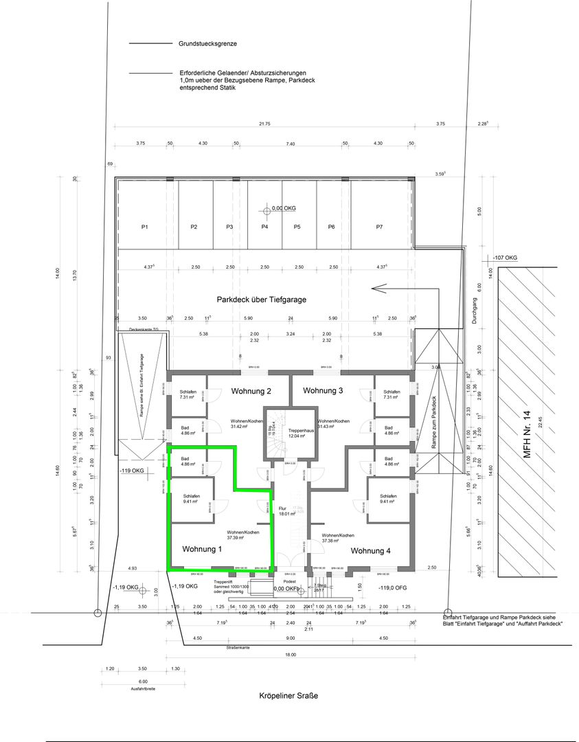
2- Raum Wohnung-Wohnung 1, Erdgeschoss
Wunderschöne und sehr großzügige neu gebaute 2-Raum Wohnung.
Die Wohnung befindet sich in einem Haus mit 14 Einheiten, welches zum Frühjahr des Jahres fertiggestellt wird. Das Objekt verfügt über 3 Geschosse, eine Tiefgarage und ein Parkdeck.
Die 2-Raum Wohnung befindet sich im Erdgeschoss des Mehrfamilienhauses.
Es erwartet Sie eine wunderschöne, sehr helle und moderne 52,54 m² große 2-Raum Wohnung. Diese teilt sich auf in 1 Schlafzimmer, 1 Wohn-und Küchenbereich mit Einbauküche und 1 Badezimmer mit Dusche.
Die Wohnungen verfügen über Fußbodenheizung und Durchlauferhitzer.
Zur Wohnung gehört ein PKW-Stellplatz direkt am Haus und ein Kellerabteil.
Zur gehobenen Ausstattung gehört weiterhin, dass die Fenster eine Zwangsbelüftung beinhalten und natürlich 3-Fach Verglast sind. Das trägt zum guten Raumklima bei. Das Objekt ist mit einer Luft-Wärmepumpe ausgestattet. Das heißt, Ihre Heizkosten sind den aktuellen Energiestandards angepasst.
Eine Besichtigung findet ausschließlich mit uns zusammen statt.
Wir benötigen folgende Unterlagen von Ihnen:
- Schufa-Auskunft
- Kopie vom Personalausweis
- die letzten 3 Gehaltsnachweise
- Vermieterbescheinigung
Alle Angaben ohne Gewähr. Alle Angaben berufen Sich auf die Aussage der Eigentümer. Wir haften weder für den Inhalt des Exposé noch für die Richtigkeit der Angaben.
Bad Doberan mit seinem Ortsteil Heiligendamm ist eine Sadt im Landkreis Rostock in Mecklenburg-Vorpommern. Sie liegt zwischen dem Ostseebad Kühlungsborn imWesten und der Hanse Stadt Rostock im Osten. Bad Doberan ist ein schöne Stadt, im Hinterland der Ostsee. Die nahe gelegenen Wiesen, Weiden, Wälder und die schönen Gebäude wie das Münster sowie die kleinen Parkanlagen geben dem Ort das Gepräge. Sie erreichen die meisten Strandabschnitte zwischen Rerik im Westen und Warnemünde im Osten in wenigen Kilometern. Die zentrale Lage ermöglicht aber auch kurze Wege nach Rostock und Wismar sowie darüber hinaus durch die Autobahnanbindung auch nach Hamburg und Berlin.