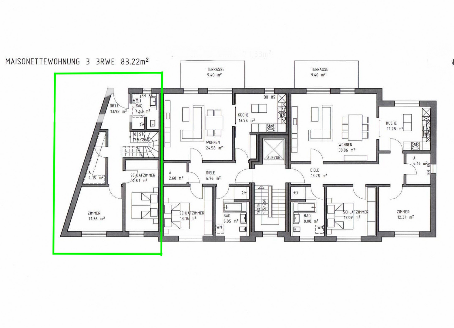
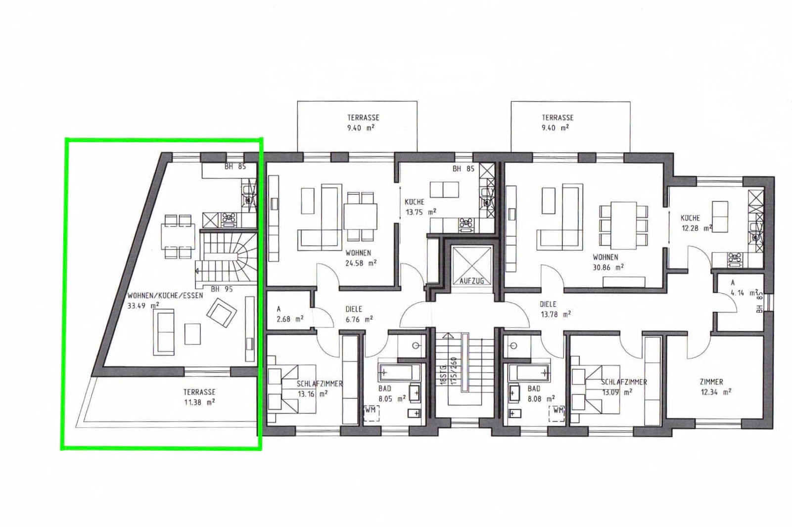
Moderne und helle 3-Raum Maisonette Wohnung mit Balkon
Diese wunderschöne Maisonette 3-Raum-Wohnung befindet sich in einem hoch energieeffizienten Objekt direkt am Ziegenmarkt in Bad Doberan.
Sie verfügt über ca. 83,22 qm und teilt sich im unteren Teil der Wohnung auf in ein Schlafzimmer, ein Kinderzimmer und in ein Badezimmer mit Dusche. Über eine Treppe gelangen Sie in den oberen Teil der Wohnung. Hier befindet sich die Wohnküche mit Zugang zur Terrasse.
Zur Wohnung gehört ein Kellerabteil und ein Außenstellplatz. Dieser kann für 50,00€ monatlich dazu gemietet werden. Für alle Mieter des Hauses steht ein Fahrradraum zu Verfügung.
Eine Besichtigung findet ausschließlich mit uns zusammen statt.
Alle Angaben ohne Gewähr. Alle Angaben berufen Sich auf die Aussage der Eigentümer. Wir haften weder für den Inhalt des Exposés noch für die Richtigkeit der Angaben.
Es werden nur Anfragen mit vollständigen Adressdaten, Telefonnummer und E-Mailadresse beantwortet.
+ Abstellraum
+ PKW-Stellplatz
+ Terrasse
Bad Doberan mit seinem Ortsteil Heiligendamm ist eine Sadt im Landkreis Rostock in Mecklenburg-Vorpommern. Sie liegt zwischen dem Ostseebad Kühlungsborn im Westen und der Hanse Stadt Rostock im Osten. Bad Doberan ist ein schöne Stadt, im Hinterland der Ostsee. Die nahe gelegenen Wiesen, Weiden, Wälder und die schönen Gebäude wie das Münster sowie die kleinen Parkanlagen geben dem Ort das Gepräge. Sie erreichen die meisten Strandabschnitte zwischen Rerik im Westen und Warnemünde im Osten in wenigen Kilometern. Die zentrale Lage ermöglicht aber auch kurze Wege nach Rostock und Wismar sowie darüber hinaus durch die Autobahnanbindung auch nach Hamburg und Berlin.
Besonderheiten zur Architektur:
Am Ziegenmarkt wurde nun ein Grundstück, was schon seit Jahrzehnten unbebaut war und als PKW Stellplatz diente, mit zwei straßenbegleiteten Einzelgebäuden bebaut. Die Gebäude sind zeitgemäße, gestaffelte Gebäude und verfügen über insgesamt 12 Mietwohnungen und ein Büroraum/Atelier, was den Alexandrinenhof zu dieser Seite Abschließen soll. Für alle Mietwohnungen wurde im Innenhof PKW-Stellplätze geschaffen.
Dieses Projekt wurde von der Firma MAKRA-Bau errichtet in Holzständerbauweise mit vorgefertigten Elementen. Die Flachdächer des Objektes werden alle begrünt und Speichern das Regenwasser bis zu 3 Tage, bevor es in die öffentliche Regenwasserableitung gelangt und bieten gleichzeitig den Vögeln und Insekten Ausgleichsflächen. Beheizt werden die Objekte mit einer Luftwärmepumpe und zusätzlichen Photovoltaikanlage mit Speicher als Fußbodenheizung. In jeder Wohnung befindet sich eine dezentrale Wohnraumlüftung mit Wärmerückgewinnung. Die Balkone liegen alle zum Innenhof. Es wurde sich dazu entschlossen, die meisten Fenster Bodentief zu wählen, somit wurden helle, freundliche Räume geschaffen.